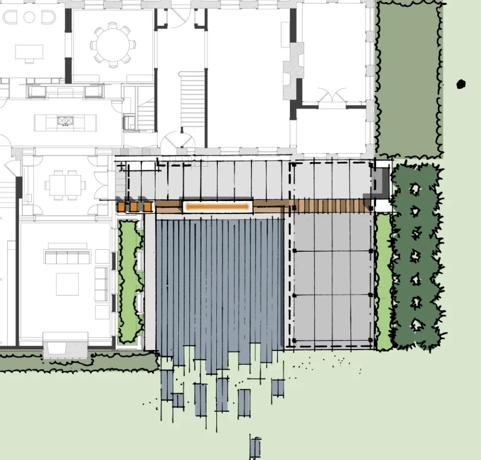
1209 Residence : the client desired a flexible, modern, eclectic and open space suitable for entertaining guests and family gatherings. Inspired by the functionality of Mediterranean courtyards, this concept incorporates a sophisticated steel pergola, a thirteen-foot-long fire trough wrapped in Cor-ten steel, cut bluestone paving, and new plantings. Additional custom furnishing supplement the definition of this outdoor space. Additionally, a terraced amphitheater space is slated for design and implementation in 2016, which will consist of custom benches, plantings, accent lighting and opportunity for video projection.
Project Team
FORWARD D+A / PLAID collaborative
